The Layla
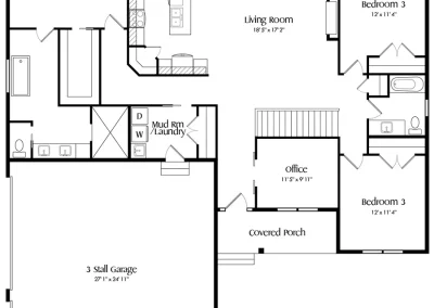
The Layla has a beautiful large front porch and large windows. This home includes 4 bedrooms, 3 bathrooms, and a 3 car garage not to mention a sizeable mudroom, optional gas fireplace, second floor laundry, and a generous kitchen with butler’s pantry. The master suite offers a sense of luxury with a full bath, walk-in closet and a box vault ceiling.
Plan
Details
| Stories | 1 |
| Square Feet | 3,478 |
| Bedrooms | 5 |
| Bathrooms | 3 |
| Garage Stalls | 3 Car |
Complete the look of luxury by selecting colors, fixtures, and other elements for your home. Finish your home with a finished basement for another bedroom, bathroom, and living room.
Captivating New Homes with a
Custom Touch
When you walk through the door of an Avant Builders home, you’ll be immediately struck by the quality of construction and the attention to detail. Our homes are built to last, and we use only the finest materials, such as granite countertops, luxury vinyl plank flooring, and stainless steel appliances.
We also offer a variety of customization options, so you can create a home that is truly your own. Whether you’re looking for a traditional or modern design, we can help you find the perfect home for your needs.
